Nemovitosti

Celkem 17 fotografií, zobrazit všechny
Prodejce:
Marek Vrtilka
telefon: +420777944355, +420 481 320 590
rknika@rknika.cz

Máte dotazy? Nezávazně nás kontaktujte:

* Vaše jméno
* Váš email
* Telefon
* Váš vzkaz
 
  Odesláním dotazu zároveň souhlasíte se zpracováním osobních údajů

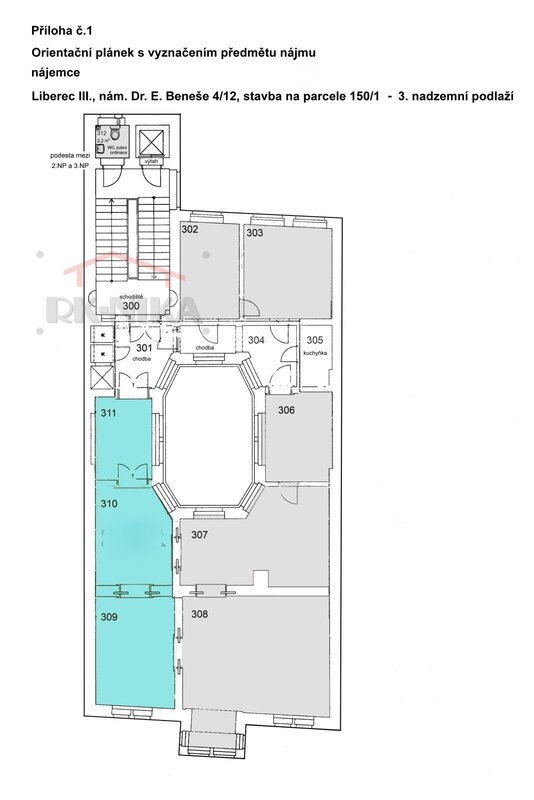
Kanceláře 45,5 m² s parkováním – Liberec, nám. Dr. E. Beneše (naproti radnici)

Cena:
250 ,- za m2/měsíczálohy za měsíční služby 125,-Kč/m2 + provize realitní kanceláře ve výši jednoho měsíčního nájemného
Popis nemovitosti:

Nabízíme k pronájmu kancelářské prostory na prestižní adrese – náměstí Dr. E. Beneše v Liberci, přímo naproti historické budově Magistrátu města Liberec. Prostory se nacházejí ve 2. patře krásně renovovaného domu, který patří mezi dominanty náměstí a poskytuje firmě výbornou dostupnost i viditelnost.
Celková výměra činí 45,5 m² a zahrnuje tři na sebe navazující kanceláře, vhodné například pro menší firmu, pobočku společnosti, poradenské služby, účetní, projektanty či administrativní zázemí firmy.
K dispozici je společné zázemí – kuchyňka a sociální zařízení.
Velkou výhodou je 1 vyhrazené parkovací místo ve dvoře za domem, což je v centru města výrazný benefit pro nájemce i klienty.
Vybavení
• výtah v budově
• internetové připojení
• reprezentativní vstup do domu
• parkování ve dvoře
• zastávky MHD přímo na náměstí

Ideální kanceláře pro podnikání na adrese, kterou každý v Liberci zná. Vhodné pro firmy, které chtějí být klientům na očích a zároveň mít komfortní zázemí v centru města.

Typ nemovitosti:
Komerce
Číslo nemovitosti:
2026007
Typ komerce:
Kancelář
Operace:
Pronájem
Adresa:
Liberec
Liberec (nečleněné město)
nám. Dr. E. Beneše 4/12
K nastěhování od:
1.6.2026
Plocha podlahová:
46 m2
Podlaží:
2. podlaží z 4 podlaží celkem
Sklepní podlaží:
1. sklepních podlaží
Stav objektu:
Dobrý
Konstrukce:
Cihlová
Umístění objektu:
Centrum obce
Vydaný certifikát:
G - Mimořádně nehospodárná
Typ certifikátu:
vyhláška č. 264/2020 Sb
Je zobrazena tato GPS souřadnice:
50° 46' 8.327"N, 15° 03' 28.323"E